Currently under construction, these two contemporary three-bedroom residences have been meticulously designed to make the most of their prime location. It stands out for its spacious infinity pool and stunning panoramic sea views, as well as generous interior areas designed with a functional and welcoming design.
House (H1/59 Left) with 3 bedrooms with suites. 4 Bathrooms. 1 Swimming pool garage for 2 cars.
SOLD : House H2/58 Right) with 3 bedrooms with suites. 4 Bathrooms. 1 Swimming pool garage for 2 cars.
Each modern and charming house, located in Sítio das Amoreiras, in Calheta, is a true haven of comfort and sophistication, with stunning panoramic views of the sea. Ideal for those seeking privacy, natural beauty and contemporary design, the property stands out for its excellent layout and high-quality finishes.
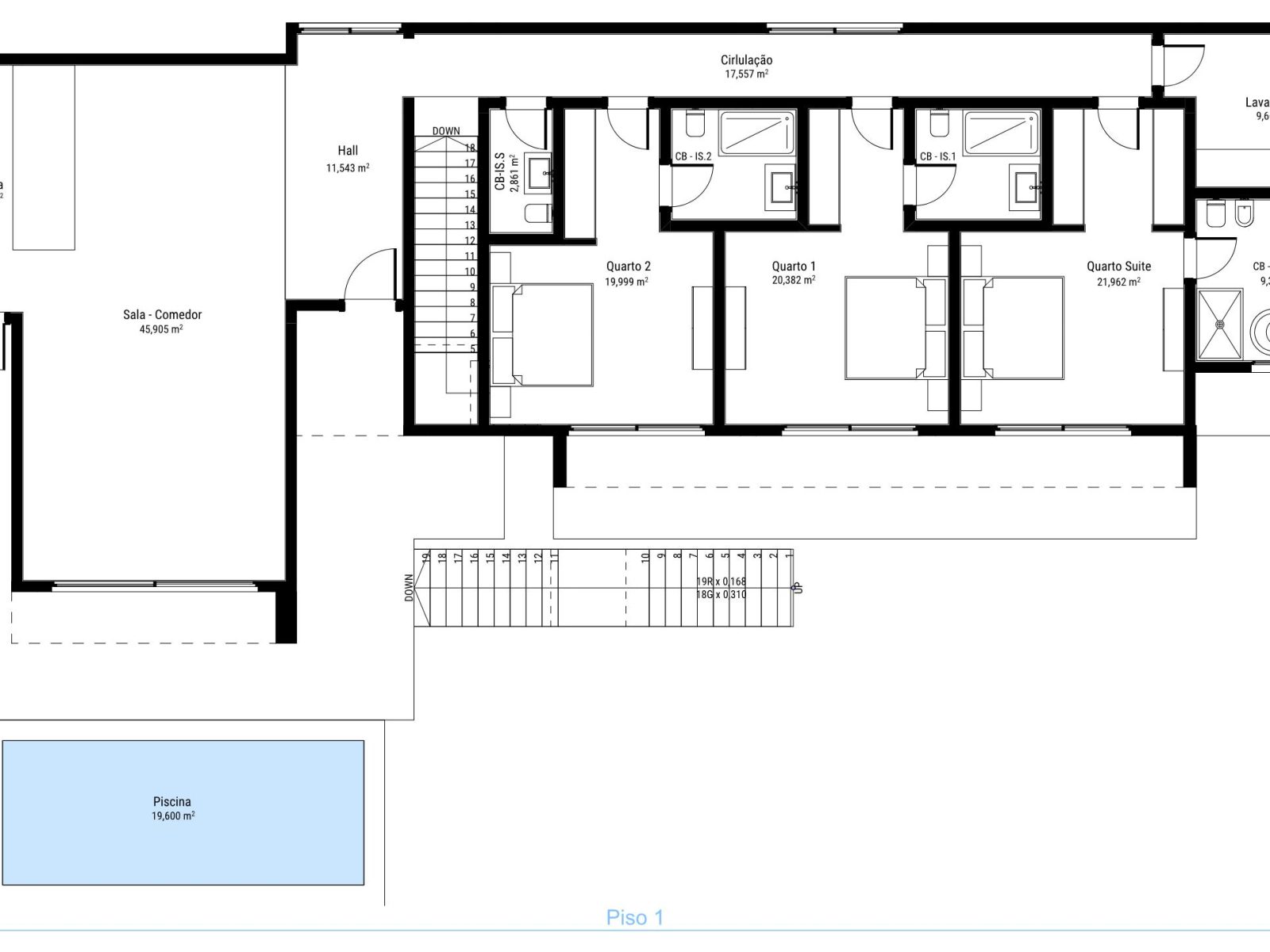
Each house has 3 spacious suites, all with elegant finishes and equipped to provide an environment of total comfort. The first two suites are equipped with built-in wardrobes and complete bathrooms with shower, ensuring practicality and privacy. The master suite, in turn, offers a superior level of comfort, with a generous walk-in closet and a luxurious bathroom with bathtub and shower, providing a true experience of relaxation.
The interior design was carefully thought out to maximize the brightness and fluidity of the spaces. The living room and kitchen, in an open space concept, provide a spacious and airy environment, with a direct view of the sea and the infinity pool, creating a feeling of continuity between the internal and external spaces. The highlight of the house is the perfect integration between the exterior and interior, ideal for making the most of the region’s mild climate and enjoying the stunning views of the ocean.
For greater convenience, the houses have a guest bathroom, located near the entrance, as well as a fully equipped laundry room, making daily tasks easier.
The garages offer ample parking space, ensuring safety and convenience for residents. Infinity pools are the perfect place to relax and admire the horizon, while the contemporary design of the homes reflects elegance and functionality.
With a peaceful environment and spectacular views, these houses in Sítio das Amoreiras / Arco da Calheta are the ideal place for those looking for an excellent home, surrounded by the natural beauty of Calheta.
Price of each: 1,100,000 Euros.
- ReferênciaetcKD
- ObjetivoVenda
- Tipo de ImóvelMoradias
- EstadoNovo
- Quartos0
- Casas de Banho0
- Ano de Construção
- Área Útil255 m2
- Área Bruta-
- Área de Terreno400 m2
- Licença de Utilização-
- Acessibilidade a pessoas com mobilidade condicionada
- Aquecimento Central
- Ar Condicionado
- Aspiração Central
- Churrasqueira/Barbecue
- Cozinha Equipada
- Estacionamento
- Garagem
- Intercomunicador
- Jardim
- Painel Solar
- Piscina
- Porta Blindada/Segurança
- Suite
- Varanda
- Vídeo Porteiro
- Vidros Duplos
- Vista de mar
- Vista fantástica
- Vista montanha
Quer marcar uma visita?
Ezekiel Freitas
ETCMADEIRA
+351 291 827 919
+351 968 189 810
etcmadeira.agency@gmail.com
Rua Padre José Eduardo Faria, N° 11C R/C
Arco da Calheta (Antes da Igreja)
9370-050 Calheta - Madeira


